На главную Карта сайта
Кельвин - оборудование для бани и сауны

Оборудование для бани и сауны

ТЕПЛОДАРHARVIAAKMAКОСТЕРУТС

Всё для бани и сауны - широкий ассортимент оборудования, печи и камины Теплодар, электрические, дровяные и банные печи, сауна, инфракрасные кабины, аксессуары, материалы, строительство, мебель

Пермь, тел.: (342) 243-30-76
Где купить? О компании Медиагалерея Новости Полезное
Каталог товаров
Печи для бани
Теплодар
Костер
Печи и камины для дома
Теплодар
Костер
Отопительные котлы
Теплодар
Костер
Общемаш
Пеллетные горелки
Теплодар
Жарко
Печи для сауны
Теплодар
Костер
Пульт управления
Дымоходы
Теплодар
Schiedel
Сопутствующие
Для банных печей
Для котлов
Баки
Master Flash
Термозащита
Аксессуары
Гибкие металические трубы
Документация

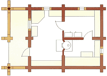
Проект баньки № 6 - 20 м2

Проект баниПроект бани

 


Площадь общая бани - 20 кв. м.
Вернуться к списку статей



© «Кельвин»
«Все для сауны и бани»
Создание сайта - INSY.RU
г. Пермь, ул. Аркадия Гайдара, 5. Тел.: (342) 263-42-82, 243-30-76, E-mail: kelvin_perm@mail.ru, kelvin_alg@mail.ru, icq:411162280, «Кельвин» - магазины фирменной продукции Теплодар
Дизайн сайта